Ver Tour Virtual
- $990,000 USD En Venta
- 3 dormitorios
- 3 baños, 1 medio baño
- 338 m² de superficie total
- 3 Estacionamientos
- Nuevo Condición
Detalles
- Tipo: Apartamento
- ID: EB-VT0008
- Antigüedad: En construcción
- Recámaras: 3 dormitorios
- Baños: 3
- Medios baños: 1
- Superficie cubierta: 295 m²
Descripción
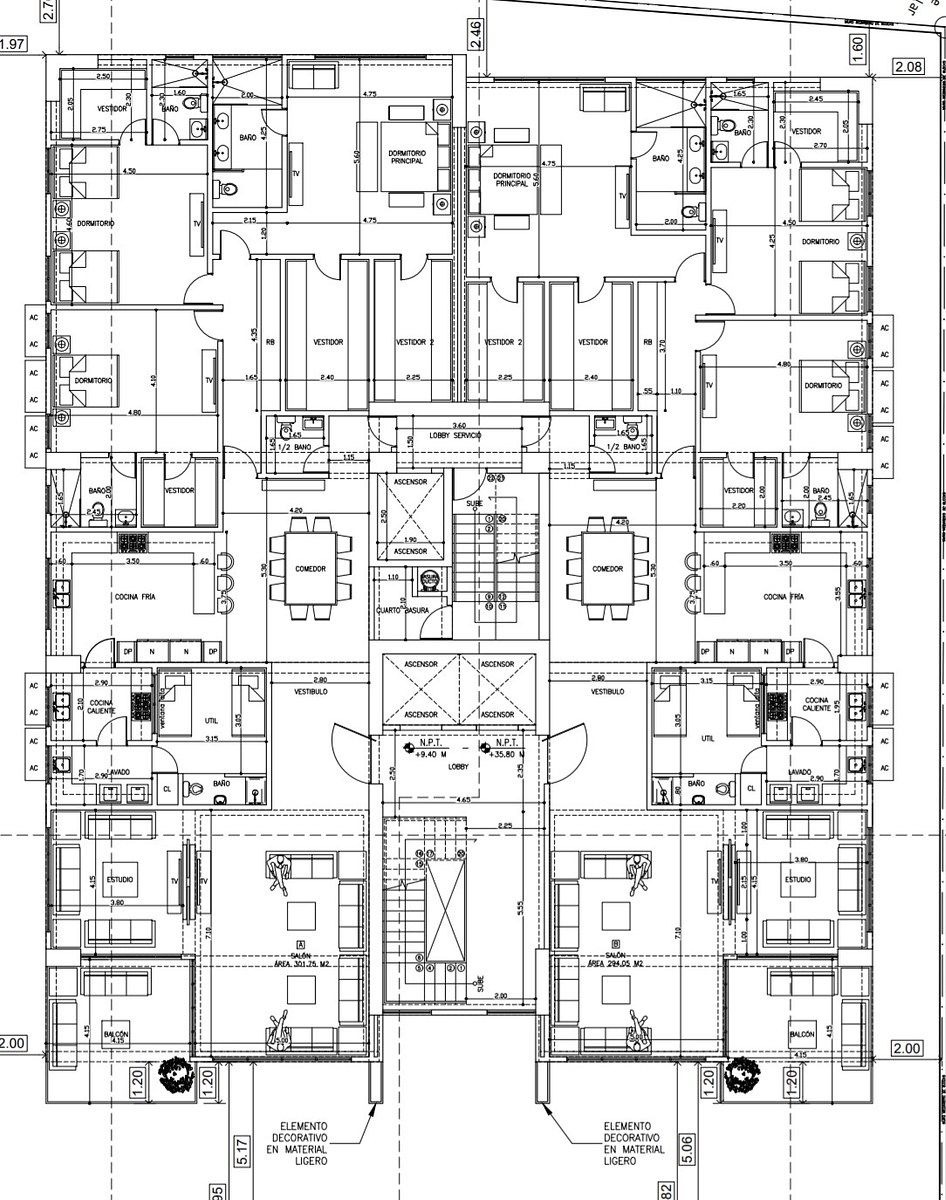
2 apartamentos por nivel de 295m2 y 302 m2 netos
Caracteristicas:
Vestíbulo de entrada
3 Habitaciones con baño y walk-in closet
3.5 Baños
Sala
Estudio
Comedor
Cocina fría y caliente
Terraza privada
3 Parqueos techados
Locker
Área de lavado
Cuarto de servicio
Areas sociales:
Salón para actividades
Área de lounge con bar integrado
Área de juegos para niños
Piscina
Gimnasio
BBQ
Parqueos adicionales disponibles
Precios desde: US$990,000
Entrega : Junio 2029
Amenidades
- Cocina caliente
- Cocina fría
- Balcón
- Estacionamiento techado
- Terraza común
- Terraza privada
- Acceso para personas con discapacidad
- Ascensor
- Cuarto de servicio
- Estudio cerrado
- Gas común
- Locker
- Planta eléctrica
- Portero
- Portón eléctrico
- Seguridad 24 Horas
- Mascotas permitidas
- No permiten alquileres a corto plazo
- Área infantil
- Gimnasio
- Piscina
- Salón de eventos
- Vista al mar
Ubicación












